
{wbamp-meta name="image" url="https://pmhi.com/media/k2/items/cache/233826a67be66a810b23a263230da62e_L.jpg" width="600" height="207"}
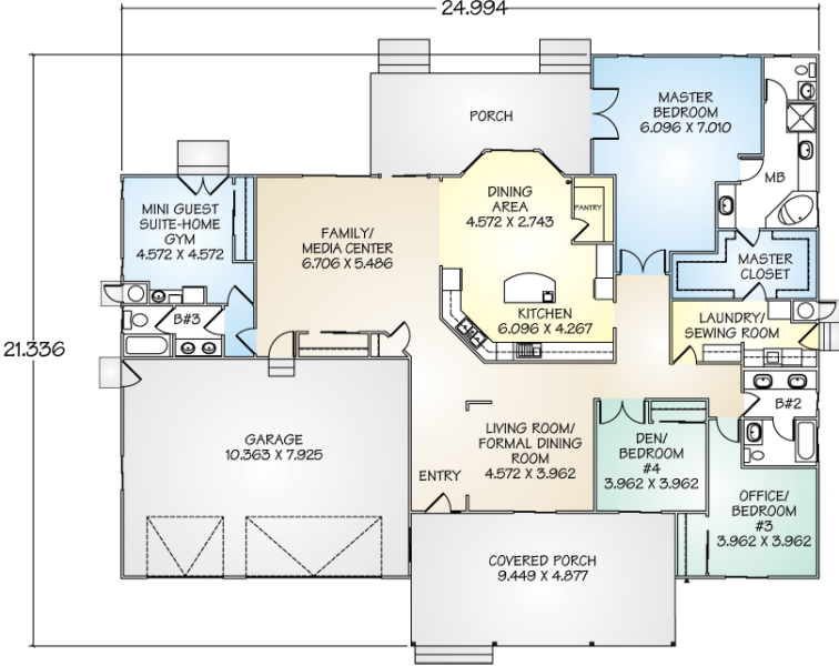
A large front porch sets a welcoming tone to this spacious plan. Inside, the Napa panelized kit home offers almost unlimited possibilities for customizing the individual rooms. Any of the bedrooms can be modified to serve as a den, home office, or game room, while the mini guest suite includes private and house access, a private bath, and a kitchenette. The large master suite enjoys direct access to the back porch and a sizable walk-in closet. Centrally located, the double-entry kitchen and nook has a large island, pantry, and computer desk. The Napa’s unique multi-use laundry room is accessible from the main living areas, master suite closet, guest bath, and the backyard. Adjacent to the kitchen, the multi-use family room offers an extensive view of the backyard as well as direct entry into the three-car garage.


